
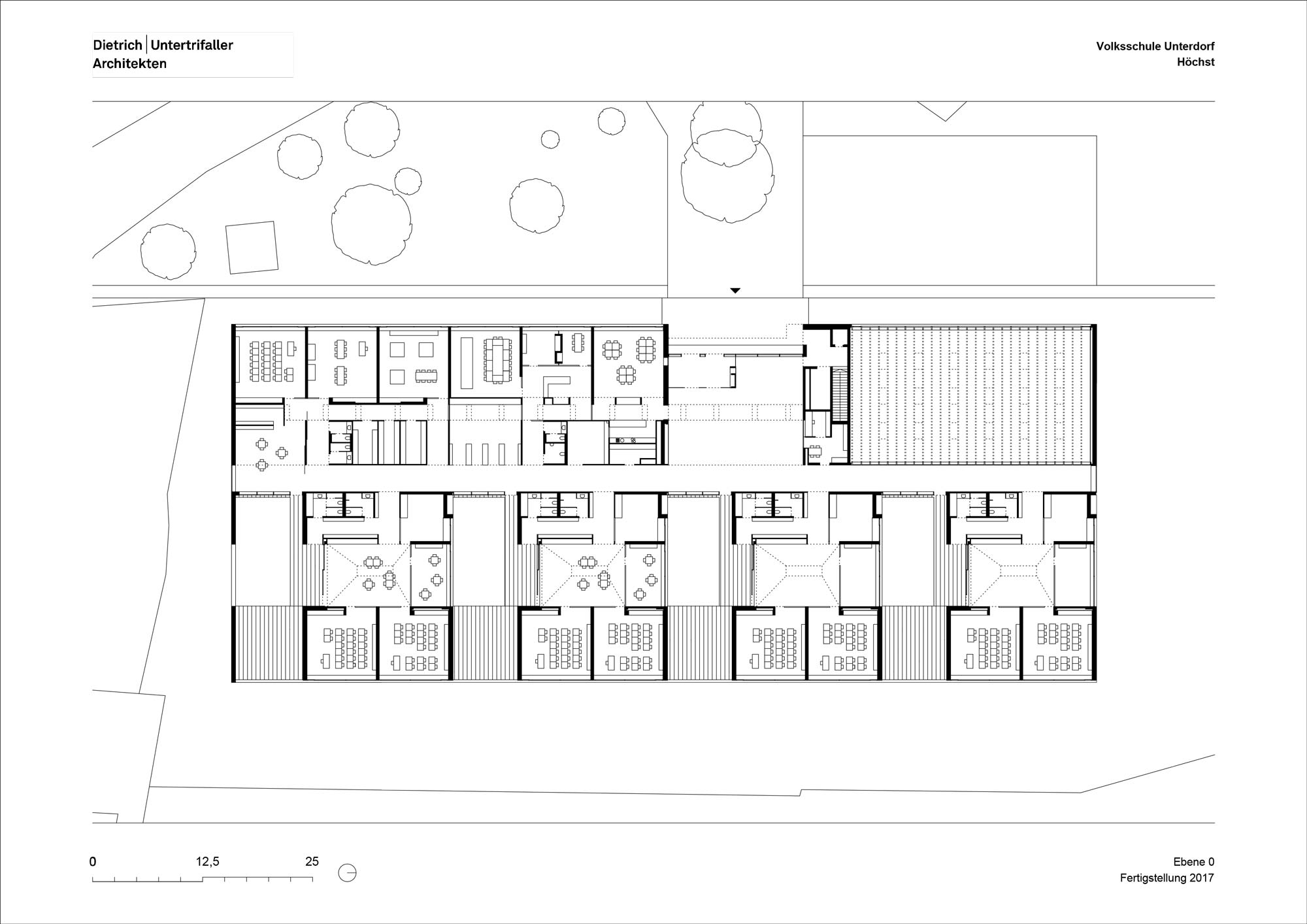
UNTERDORF ELEMENTARY SCHOOL, HÖCHST, AUSTRIA
For this new elementary school in Höchst, architects Dietrich Untertrifaller sought to take the Scandinavian concept of a ‘cluster school’ and apply it to western Austria — the essential idea being to design a building that allows for teaching in small groups across flexible spaces and diverse open areas, many of them outdoors.

This article was originally published in issue 30 of Passive House Plus magazine. Want immediate access to all back issues and exclusive extra content? Click here to subscribe for as little as €10, or click here to receive the next issue free of charge
These open layouts are designed to encourage new and alternative forms of teaching and learning, and Dietrich Untertrifaller describe the Unterdorf elementary school as a “radical, uncompromising example” of these principles.
“There are no hierarchies in a one-storey school building; all children have equal access to the outdoor areas and special classes,” says architect Patrick Stremler.
Large areas of glazing allow teachers to easily see pupils as they are learning or playing in different areas, while some of the outdoor areas are also open for locals to use freely, too.
The school was built to the passive house standard from a pre-fabricated timber frame system, and Stremler points out that prefabrication offers a big advantage in the construction of schools, which typically must be completed to strict deadlines — sometimes even over the summer holidays.



Perhaps not surprisingly, the building’s open, community-centred design was informed by an advisory group that included teachers and community representatives.
“This close cooperation was a key factor in the successful implementation of this trendsetting pilot project, which implements a new standard for schools in Austria,” say the architects.
HOUSE ON WINDY PEAK, ORE MOUNTAINS, CZECH REPUBLIC

This gorgeously simple house has been dubbed ‘House on Windy Peak’ by architects Stempel & Tesar, and true to its name, it is located 750 metres up in the Ore Mountains of the northern Czech Republic, not far from the border with Germany.
And how better to protect yourself against the cold, windy winters up here than by living in a passive house? Built from clay blocks that are externally insulated and clad in the dark timber typical of the region, that house’s simple, rational form — a hallmark of Stempel & Tesar’s work — befits the stark mountain setting.

It also made it easier to meet the passive house standard, too, by minimising the area from which heat could escape.
And while the house is sited near a wind farm, the architects report that the superinsulated, airtight structure is excellent at blocking out any noise. Meanwhile, the main elevation facies south from the mountainside, and the living area is lined with large floor-to-ceiling windows to make the most of the sweeping views.

The short summer season also inspired the addition of a ‘winter garden’ — a covered terrace in the central part of the southwestern facade that can be accessed from the living and dining rooms.
Thanks to a large sliding window, the space can be permanently opened during the warm season, and shut off in winter. “It has become the heart of the house,” say the architects.

Image gallery
-
923-VS-Unterdorf-Hchst_E0
923-VS-Unterdorf-Hchst_E0
-
923-VS-Unterdorf-Hchst_Schnitt
923-VS-Unterdorf-Hchst_Schnitt
-
923-VS-Unterdorf_Ansichten
923-VS-Unterdorf_Ansichten
-
House on windy peak 1
House on windy peak 1
-
House on windy peak 2
House on windy peak 2
-
House on windy peak 3
House on windy peak 3
https://staging.passive.ie/home/browse-by-category/international-buildings/item/2290-international-issue-30#sigProIdf0a09bbee4